Добро пожаловать на http://vipplan.ru

Випплан Курск - это тысячи проектов домов в нашем каталоге!

Вы всегда сможете найти для себя проект дома вашей мечты! Даже если этого не случилось, мы готовы в любую минуту предложить проект индивидуального дома.

Забыли пароль?
Вы еще не регистрировались?

Перейдите по ссылке ниже на страницу регистрации.

Регистрация...

Внимание!!!

В проектную документацию могут быть внесены изменения любой сложности, в соответствии в Вашими пожеланиями!

Полезные статьи

Где копать колодец?

Водоснабжение за городом - Курск всегда было проблематичным. При отсутствии центрального водоснабжения остается только один выход – выкопать колодец. Водоносный пласт есть не везде. Как же определить, где копать колодец?...

Советы по проектированию дома

Представляем Вашему вниманию несколько советов по проектированию дома. Все что касается выбора участка, размещению дома на участке, подбора проекта на строительство дома, советы по выбору технологии строительства и материалов и т.д....

Проекты домов и коттеджей > Каталог проектов домов > Индивидуальный проект бани Vg1027

Индивидуальный проект бани Vg1027

Индивидуальный проект бани
Зарегистрируйтесь

Проект № Vg1027


Техническое описание
Общая площадь: 46.2 м2
Жилая площадь: 15.86 м2
Высота здания: 5.48 м
Размеры дома: 6.72м×13.21м
Кол-во комнат: 3
Цокольный этаж: нет
Гараж: нет
Мансарда: нет

Kонструкция
Фундамент: Свайно-ростверковый
Перекрытия: Деревянные балки
Материал стен: Бетонные блоки

Архитектурный раздел
Конструктивный раздел
АР+КР - 36 000 (Со скидкой 20%)
Индивидуальный проект бани с размерами здания 6,72 x 13,21 м. Наружная отделка здания - фасадная штукатурка. Цоколь - отделка камнем. Кровля - битумная черепица. Отделка вентканалов - штукатурка. Фундамент - свайно-ростверковый (буронабивной). Ростверк - монолитный, ж/б. Наружные стены здания: керамзитоблок с утеплением минеральной ватой и отделкой фасадной штукатуркой. Перегородки 1 этажа - керамзитоблок перегородочный. Пол 1 этажа - пол по грунту. Чердачное перекрытие - по деревянным балкам с использованием теплошумоизоляционных материалов типа "URSA" в межбалочном пространстве. Перемычки - монолитные железобетонные и сварные из профиля проката. Крыша - двускатная. Окна - металлопластиковые, выполнить по индивидуальному заказу.
Генплан застройки участка / Паспорт проекта 7000 руб / 10000 руб
Инженерный раздел (полный) 25000 руб
Смета на строительство 12500 руб
Теплотехнический расчет материалов стен Бесплатно
Стоимость проекта со незначительнми изменениями 43850 руб
Стоимость проекта со средними изменениями* 47300 руб
Стоимость проекта со значительными изменениями** 48200 руб

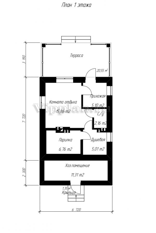
План первого этажа


Прихожая - 5,10 м2
Комната отдыха - 15,86 м2
С/у - 2,16 м2
Парилка - 6,76 м2
Душевая - 5,01 м2
Подсобка - 11,31 м2
Индивидуальный проект бани Индивидуальный проект бани Индивидуальный проект бани Индивидуальный проект бани

Модификации проектов

Внесение изменений и привязка к участку строительства

В любой из проектов от компании VIPplan - Курск по вашему желанию могут быть внесены изменения в материалы стен, материалы наружной отделки дома, а также будет произведена адаптация проекта под конкретный регион строительства (с учетом грунтов региона, геологических особенностей вашего участка и местных климатических условий) - БЕСПЛАТНО !!! (кроме проектов со скидкой и проектов наших партнеров).

Любой из проектов, размещенных на сайте kursk.vipplan.ru мы можем выполнить из требуемых вам строительных материалов: ячеистый бетон (газобетон, пеноблок), керамоблок, кирпич, шлакоблок, бетонный блок, дерево (брус, клееный брус), каркасная технология (деревянный каркас, металлокаркас (ЛСТК)).

Фасад дома и его наружную отделку так же возможно выполнить с применением различных облицовочных материалов: структурной штукатурки, (с утеплителем и без), сайдингом (пластиковый или металлосайдинг), фиброплитами, кирпича.

 
6 Избранные
проекты

Доставка проектов по России: Москва (Московская область), Санкт-Петербург (Ленинградская область), Краснодар, Ростов-на-Дону, Ставрополь, Сочи, Волгоград, Новосибирск, Белгород, Брянск, Воронеж, Саратов, Хабаровск, Астрахань, Нальчик, Владикавказ, Екатеринбург, Тюмень, Самара, Нижний Новгород, Казань, Пермь, Уфа, Челябинск, Красноярск, Ханты-Мансийск, Иркутск, Курган, Оренбург, Омск, Томск, Барнаул, Новокузнецк, Кемерово, Абакан, Чита, Якутск, Южно-Сахалинск, Петропавловск-Камчатский и страны ближнего зарубежья: Белоруссия, Украина, Казахстан